Homeland

Background

MRU Studio, Second year

Project Type: Residential

Each student is assigned a couple looking to renovate their home based on a list of wants and needs. Must feature the assigned inherited objects.

Learning Outcomes

  • Hand drafting

  • Residential Space Planning

Concept

Beauty in Heritage

A live-in art museum, showcasing beauty within one’s heritage.

The young couple loves to host dinner parties. Their guests mainly consist of potential or current clients of Ade, who is an art dealer specializing in African art. Ade requests that a special feature be placed on some inherited items. They want the main floor to reflect the feel of an art museum but, still be cozy.

Monique is a lawyer who usually works in an office but sometimes needs a quiet space to work. She relocated from New Brunswick to Alberta and frequently hosts family members. Although the couple don’t have or want kids, they requested 2 guest rooms for family and/or friends.

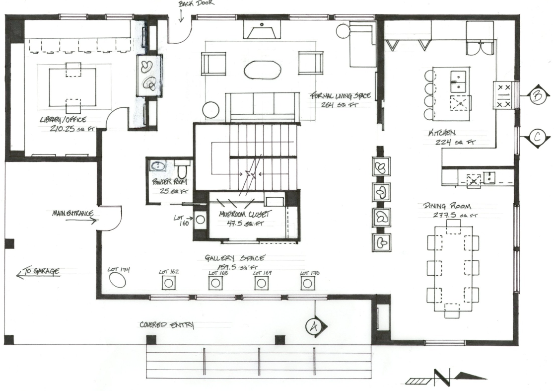
The main entry forces you to walk through the art gallery, which showcases Ade’s inherited items, before entering the dining room where he often hosts potential & current clients. The combination of natural and track lighting effectively highlights the sculptures on display. A large painting mounted on a track acts as the sliding door, concealing the entrance to the mudroom closet. The architecture incorporates additional art pieces, such as large sculptures in glass cases embedded into the walls. These thoughtful design elements allow guests to appreciate the artwork from various angles, enhancing the overall experience within the space.

The Library/office is Ade’s primary workspace but, there is spatial allocation for Monique should she need to work from home.

First Level

Inherited Items

Second Level

The Primary wing, located on the west side of the second floor, houses the Primary Bedroom which is connected to a spacious walk-in closet and ensuite bathroom.

Additionally, on the same floor, there is a second family room designed to accommodate visiting family members from out of town.

Section A

Section B

Section C